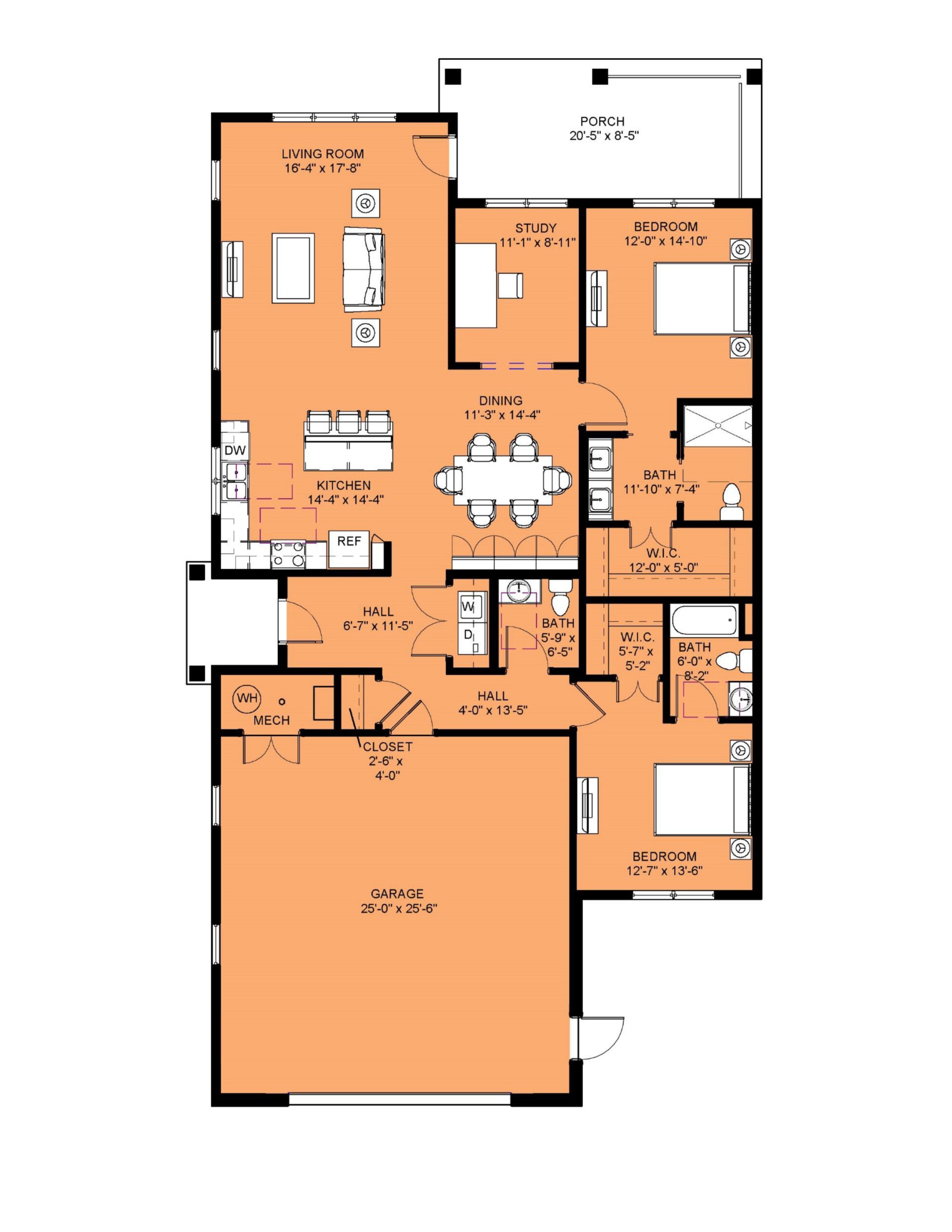
Choose your ideal new floor plan.
See our selection of proposed bright and spacious two-bedroom apartment homes.
Whatever your style, we’re creating the perfect setting for you to enjoy the warm and welcoming lifestyle at Covenant Living of the Great Lakes.
For more information call (877) 653-1426, or click here to request information.
*Floorplans square feet is an approximation and is subject to change
Your heart does a lot for you—let’s return the favor! ❤️ This American Heart Month, we’re celebrating the active lifestyles that keep our residents young at heart. Whether it’s a brisk walk on our walking paths, a heart-pumping fitness class, or a nutritious meal prepared by our culinary team, healthy living is built into every day here.
Small steps lead to big changes. What’s one thing you’re doing for your heart today? 🏃♂️🥗 ... See MoreSee Less
Comment on Facebook
Discover a senior living community that puts you at the heart of everything. Whether you’re just starting your journey or looking to make the most of your next chapter, #CovenantLiving offers a range of options that help you live well and stay connected. From vibrant social activities to wellness programs, there’s something for everyone. 🌟
Explore how we can make this the best chapter of your life: bit.ly/40cWLKS ... See MoreSee Less
Comment on Facebook
A new year brings new opportunities to live with purpose — and to prepare for what matters most. Covenant Trust shares helpful ways to start 2026 feeling organized, confident, and ready for the year ahead:
*Review your spending and income. Take stock of what’s changed and where you want to go next.
*Review your estate plan. Make sure your plans reflect your current goals and priorities.
*Consider the benefits of giving. Your generosity can make a lasting difference in the lives of others.
*Review your investment strategy. Confirm your plan supports the future you envision.
*Start preparing your tax return. Getting organized early means less stress later.
A little planning today can bring confidence all year long. ... See MoreSee Less
Ways to Give - Philanthropy | Covenant Living Communities
bit.ly
Your support enables your friends and neighbors to continue to Live with Promise in their Covenant Living communities.Comment on Facebook